HP上で確認できるバリアフリー情報をまとめておきます。(※2025年5月現在)
記事内の写真は公式ホームページからお借りしています。
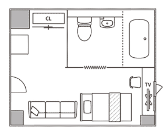
部屋タイプ・室数
シングルルーム(ソファベッド利用でツイン)
広さ:26㎡
ベッド幅:1200mm


バスルーム・トイレ
HP上に記載なし
設備・備品
HP上に記載なし
料金
15400円~
身障者用駐車場
HP上に記載なし
予約方法
電話予約:TEL 092-724-2222
アクセス
〒810-0001 福岡県福岡市中央区天神3丁目13-20
- 地下鉄 「天神駅」からホテルまで徒歩約6分
- 西鉄 「福岡駅」からホテルまで徒歩約10分