実際にホテルを訪問して、バリアフリールーム(ユニバーサルルーム)の中や設備・アクセスを確認してきました。(2023年1月)
外観・ロビー



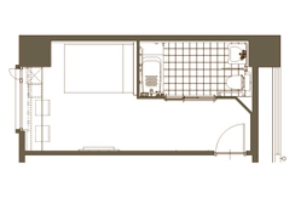
部屋タイプ・室数
| 部屋タイプ | ダブル |
| 室数 | 1室 |
| タバコ | 禁煙 |
| フロア | 2F |
| 客室入口幅 | 80cm |
| 広さ | 22㎡ |
| 定員 | 1~2名 |
| ベッド幅・高さ | 140cm・50cm |




バスルーム・トイレ
| 浴室入口段差 | なし |
| 福祉用シャワーチェア | あり(背もたれ、手すりなし) |
| トイレL字手すり | 座って左側 |
| トイレ背もたれ | あり |




設備・備品
車椅子の貸出しあり
多目的トイレは1Fにあります。


料金
じゃらんの予約ページで確認できます。
出ていないことがあるそうなので、その場合は電話で確認してください。
TEL:092-629-8666
予約方法
じゃらんでネット予約が可能です。
電話での予約 TEL:092-629-8666
身障者用駐車場
身障者用駐車場1台あり
料金:1000円/1泊
電話で予約が必要です。TEL 092-629-8666

アクセス
〒812-0001 福岡県福岡市博多区大井2-10-6
徒歩で向かう際は、道中に歩道橋があります。
数ヶ所道が悪くなっているので暗い時間帯は注意が必要です。
手動車椅子・頸損(C6)のパワーでは、歩道橋を渡りきれませんでした。
福岡市営地下鉄空港線福岡空港駅から徒歩約10分
福岡空港 国内線ターミナル北到着口G扉から徒歩約8分
[天神方面から]福岡都市高速 空港通ランプより車で約10分
[大宰府方面から]福岡都市高速 半道橋ランプより車で約10分