HP上で確認できるバリアフリー情報をまとめておきます。(※2023年1月現在)
記事内の写真は公式ホームページからお借りしています。
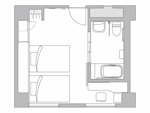
部屋タイプ・室数
ツインルーム・1室・禁煙・3階
広さ:25㎡
定員:1~2名
ベッド幅:1280mm 2台



バスルーム・トイレ

設備・備品
車椅子の貸出しあり
料金
曜日によって変動があるので予約ページから確認してください。
※参考価格:2名1泊、16000円~
身障者用駐車場
HP上に記載なし 要問い合わせ
TEL 092-406-1331
予約方法
ネット予約可能:予約ページ
電話予約:TEL 092-406-1331
アクセス
〒810-0002 福岡県福岡市中央区西中洲12号18番地
- 地下鉄空港線天神駅『16番出口』 より徒歩5分
- 地下鉄空港線中洲川端駅『1番出口』より徒歩5分
- 天神バスターミナルより徒歩7分